CỬA ĐI 1 CÁNH NHÔM HỆ XINGFA CAO CẤP
MÔ TẢ
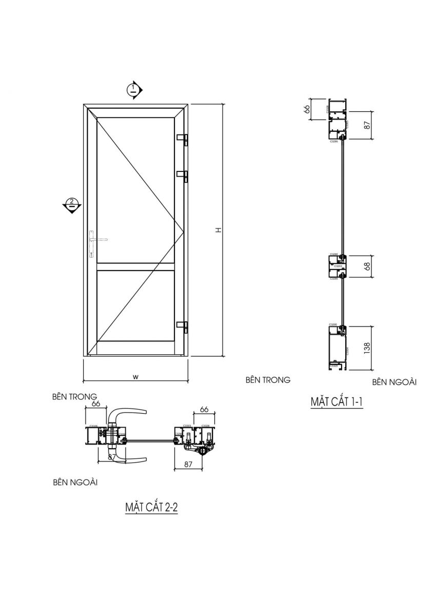
Phân loại Cửa đi nhôm Xingfa mở quay 1 cánh.
Cửa đi mở quay không đố ngang: Cửa đi mở quay không có đố ngang, chi gồm khuôn bao cửa, khuôn cánh và kính cánh. Trong khuôn cánh sử dụng 100% kính, kính cường lực hoặc kính dán an toàn.
Cửa đi mở quay có đố ngang: Trong khuôn cánh có thêm 1 đố ngang để tăng thêm tính chắc chắn cho cửa.
Cửa đi mở quay có pano nhôm: Trong khuôn cánh không dùng toàn bộ là kính mà có chia nửa là pano nhôm (tấm nhôm) có thể có họa tiết hoặc không. Kích thước của pano nhôm phụ thuộc vào nhu cầu của khách hàng.

Đặc điểm của Cửa đi nhôm Xingfa mở quay 1 cánh.
Đối với các phòng có diện tích nhỏ như phòng ngủ, phòng vệ sinh,… lắp đặt cửa đi mở quay 1 cánh sẽ giúp tiết kiệm diện tích. Cửa đi mở quay 1 cánh có thể có nhiều kích thước, tuy nhiên kích thước tối thiểu về chiều rộng phải từ 60 cm trở lên.
Cửa đi mở quay 1 cánh có thể mở quay trong, quay ngoài tùy nhu cầu của người sử dụng. Khi không gian diện tích bên ngoài không còn đủ để mở quay ra ngoài quý khách hàng có thể lắp cửa mở quay vào trong phòng. Cửa mở quay vào trong có thể mở ở khẩu độ lên đến 90 độ, gập sát vào tường không làm cản trở không gian đi lại của người sử dụng. Cửa đi mở quay ngoài chủ yếu lắp đặt cho các công trình có ban công rộng.
Mở được khẩu độ lớn nhất, rộng nhất mà vẫn an toàn. Cửa đi mở quay ngoài mở được đến 180 độ một cách nhẹ nhàng, không tốn sức do bản lề cửa trơn tru, cân được sức nặng của cả cánh. Lắp đặt cửa đi mở quay ngoài có khả năng chống chịu gió, chống va đập, chịu lực tốt nên không lo khi giông bão, mưa lớn.
Cửa nhôm Xingfa cửa đi 1 cánh mở quay các âm cách nhiệt tốt do sử dụng đúng profile nhôm Xinga chính hãng, kết hợp với các loại kính dày dặn, âm thanh tiếng ồn không thể xâm nhập.
Cửa nhôm Xingfa có khả năng chắn bụi, chống thấm hàng đầu với công nghệ gioăng cao su EPDM cao cấp, kín khít tuyệt đối, kết hợp với keo Silicone đặc chủng.
Cửa nhôm Xingfa cửa đi mở quay 1 cánh sử dụng dễ dàng, không tốn sức. Màu sắc cửa bền đẹp không bị ảnh hưởng bởi thời tiết, không gỉ sét. Các góc cửa được sử dụng bằng ke tăng cứng, ke ép góc dày 4 mm, cửa cứng hơn sử dụng các loại vít bắt thông thường.

Cấu tạo Cửa đi nhôm Xingfa mở quay 1 cánh
Nhôm: Profile nhôm hệ 55 Xingfa nhập khẩu
Độ dày: 1.4 – 2mm
Màu sắc: Trắng sứ, xanh, cát cháy, cafe, nâu sần, vân gỗ
Kính:
Kính cường lực: 6mm, 8mm 10mm,& 12mm
Kính dán an toàn: 6.38mm, 8.38mm, 10.38mm & 12.38mm
Kính hộp: 5-9-5,
Phụ kiện: KinLong đồng bộ
Bản lề 3D: 3 chiếc
Tay nắm: 3 bộ
Vấu hãm: 6 chiếc
Lõi khóa: 1 bộ
Thân khóa đa điểm lẫy gà: 1
Gioăng: Gioăng chắn nước EPDM
Vít: vít lắp đặt, vít 2cm inox
Keo: Dowcoring 791, Apolo A500, Apolo A300
Ứng dụng của Cửa đi nhôm Xingfa mở quay 1 cánh
Cửa đi mở quay 1 cánh thường sử dụng làm cửa thông phòng, cửa ra ban công, cửa ra sân vườn. Các phòng có kích thước nhỏ không đủ để thiết kế cửa đi 2 cánh hơn nữa cũng không đạt được thẩm mỹ. Do vậy lắp cửa đi mở quay 1 cánh là lựa chọn thích hợp.
Các lối đi phụ trong nhà như cửa ra ban công,, cửa đi bên cạnh nha cũng nên lắp đửa mở quay 1 cánh để tiết kiệm diện tích
LIÊN HỆ BÁO GIÁ SẢN XUẤT, THI CÔNG LẮP ĐẶT:
CÔNG TY TVXD VÂN THANH ***********Hotline: 0981244588
VPGD: Sổ 3/160 Đường Thượng Cát - Quận Bắc Từ Liêm - TP Hà Nội
Xưởng SX Khu CBLS TDP Đông Ba - Phường Thượng Cát - Quận Bắc Từ Liêm - Hà Nội
Từ khóa: Chứng chỉ năng lực hoạt động xây dựng công ty tư vấn xây dựng vân thanh; Quy trình trình tự quản lý chất lượng thi công xây dựng; Quy định về chỉ dẫn kỹ thuật; Giám sát quản lý tiến độ dự án đầu tư xây dựng công trình; tư vấn giám sát xd; Điều kiện để khởi công xây dựng công trình; Danh mục hồ sơ pháp lý; Hồ sơ chất lượng công trình xây dựng; Hồ sơ nghiệm thu bao gồm?; Giám sát chất lượng bê tông cốt thép; dịch vụ xin cấp phép xây dựng tại hà nội; dịch vụ cung cấp hồ sơ xin cấp phép xây dựng tại quận bắc từ liêm; Dịch vụ xin cấp phép xây dựng tại quận nam từ liêm; dịch vụ hồ sơ xin cấp giấy phép xây dựng trực tuyến; hồ sơ xin cấp phép xây dựng gồm những gì? ; dịch vụ hồ sơ xin cấp giấy phép xây dựng trực tuyến; xin cấp giấy phép xây dựng ở đâu? ; xin cấp giấy phép xây dựng thượng cát bắc từ liêm,; xây nhà trọn gói (tổng thầu epc); thiết kế kết cấu công trình ; dịch vụ thiết kế kết cấu xây dựng trực tuyến; tư vấn giám sát xây dựng công trình ; thiết kế nhà hợp phong thủy ; thiết kế và thi công nội thất đẹp chuyên nghiệp ; thiết kế kiến trúc và lên phương án mô hình 3D ; xin cấp giấy phép xây dựng phúc diễn bắc từ liêm hà nội ; xin cấp giấy phép xây dựng quận đống đa hà nội ; xin cấp giấy phép xây dựng quận hoàng mai hà nội ; xin cấp giấy phép xây dựng phường đức thắng quận bắc từ liêm ; xin phép xây dựng phường phú diến quận bắc từ liêm; Dịch vụ xin phép xây dựng phường cổ nhuế 1 quận bắc từ liêm; Dịch vụ xin phép xây dựng phường xuân tảo quận bắc từ liêm; Dịch vụ xin phép xây dựng phường xuân đỉnh quận bắc từ liêm; Dịch vụ xin phép xây dựng phường đông ngạc quận bắc từ liêm; Dịch vụ xin phép xây dựng phường minh khai quận bắc từ liêm; Dịch vụ xin phép xây dựng phường tây tựu quận bắc từ liêm; Dịch vụ xin phép xây dựng phường thụy phương quận bắc từ liêm; Dịch vụ xin phép xây dựng phường cổ nhuế 2 quận bắc từ liêm; Dịch vụ xin phép xây dựng phường liên mạc quận bắc từ liêm; xin phép xây dựng quận long biên hà nội ; dịch vụ xin phép xây dựng quận cầu giấy hà nội ; Dịch vụ xin giấy phép xây dựng nhà ở quận hai bà trưng hà nội; dịch vụ xin cấp phép xây dựng nhà ở quận tây hồ hà nội ; dịch vụ xin giấy phép xây dựng nhà ở quận ba đình hà nội ; dịch vụ sang tên sổ đỏ quận bắc từ liêm ; thiết kế kiến trúc nhà ở gia đình; thiết kế kết cấu / xin giấy phép xây dựng quận hà đông hà nội; dịch vụ xin phép xây dựng nhà ở quận thanh xuân hà nội; dịch vụ xin giấy phép xây dựng huyện thanh trì hà nội; dịch vụ xin phép xây dựng quận hoàn kiếm hà nội; dịch vụ xin phép xây dựng hoài đức hà nội; dịch vụ xin phép xây dựng huyện đan phượng hà nội; dịch vụ xin phép xây dựng huyện đông anh hà nội; Dịch vụ xin phép xây dựng huyện gia lâm hà nội; tư vấn quản lý dự án; tư vấn giám sát xây dựng công trình nhà ở riêng lẻ; Trách nhiệm của tư vấn giám sát trong quản lý chất lượng công trình; Trách nhiệm của nhà thầu thi công trong quản lý chất lượng công trình; Thẩm tra thiết kê thẩm tra dự toán;
Nhận xét & Thảo luận