TƯ VẤN THIẾT KẾ NHÀ PHỐ 4x13,89m

Quy trình và hồ sơ thiết kế kiến trúc nhà ở gia đình
Quy trình thiết kế nhà ở gia đình của Xây dựng Vân Thanh đã được xây dựng thành tiêu chuẩn và được thể hiện một phần qua các hồ sơ thiết kế với các giai đoạn tương ứng.
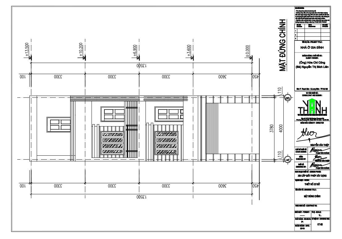
Tham khảo bản vẽ một bộ hồ sơ thiết kế bản vẽ kỹ thuật thi công hoàn chỉnh của nhà ở gia đình banve.pdf

    
   Thiết kế phương án 
       Thiết kế bản vẽ thi công
       Giám sát tác giả











 
TƯ VẤN XÂY DỰNG VÂN THANH Co.,ltd
Chúng tôi đảm bảo có đủ điều kiện hành nghề tư vấn thiết kế kiến trúcthiết kế kết cấuthiết kế điện nước và dự toán; thẩm tra thiết kế kỹ thuật, thẩm tra thiết kế thi công, thẩm tra tổng dự toán; giám sát xây dựng công trình theo đúng quy định của pháp luật Việt Nam và có kinh nghiệm chuyên môn phù hợp với chức năng và quy mô công trình. Kính mời quý khách tham khảo Vân Thanh báo giá hoặc liên hệ hotline0981244588 / 0568001987 Tvxdvanthanh.ltd@gmail.com để được báo giá chi tiết các công trình loại khác.

Với tiêu chí lấy chữ Tín làm phương châm phát triển, Thiết kế nhà lô, phố, chung cư, biệt thự đẹp vân thanh luôn phấn đấu để trở thành đối tác tin cậy, hiệu quả và nỗ lực đem lại giá trị gia tăng cho xã hội.

Vân Thanh luôn mong muốn được hợp tác, liên doanh, liên kết với các đối tác trong và ngoài nước để được cống hiến được nhiều hơn cho đất nước phồn vinh.

Kính chúc Quý Khách Hàng luôn thành công và phát triển.
Trân trọng kính chào!
Từ khóa: Chứng chỉ năng lực hoạt động xây dựng công ty tư vấn xây dựng vân thanhQuy trình trình tự quản lý chất lượng thi công xây dựngQuy định về chỉ dẫn kỹ thuậtGiám sát quản lý tiến độ dự án đầu tư xây dựng công trìnhtư vấn giám sát xdĐiều kiện để khởi công xây dựng công trìnhDanh mục hồ sơ pháp lýHồ sơ chất lượng công trình xây dựngHồ sơ nghiệm thu bao gồm?Giám sát chất lượng bê tông cốt thépdịch vụ xin cấp phép xây dựng tại hà nộidịch vụ cung cấp hồ sơ xin cấp phép xây dựng tại quận bắc từ liêmDịch vụ xin cấp phép xây dựng tại quận nam từ liêmdịch vụ hồ sơ xin cấp giấy phép xây dựng trực tuyếnhồ sơ xin cấp phép xây dựng gồm những gì? ; dịch vụ hồ sơ xin cấp giấy phép xây dựng trực tuyếnxin cấp giấy phép xây dựng ở đâu? ; xin cấp giấy phép xây dựng thượng cát bắc từ liêm,; xây nhà trọn gói (tổng thầu epc);  thiết kế kết cấu công trình ; dịch vụ thiết kế kết cấu xây dựng trực tuyếntư vấn giám sát xây dựng công trình ; thiết kế nhà hợp phong thủy ; thiết kế và thi công nội thất đẹp chuyên nghiệp ; thiết kế kiến trúc và lên phương án mô hình 3D ; xin cấp giấy phép xây dựng phúc diễn bắc từ liêm hà nội ;  xin cấp giấy phép xây dựng quận đống đa hà nội ; xin cấp giấy phép xây dựng quận hoàng mai hà nội ; xin cấp giấy phép xây dựng phường đức thắng quận bắc từ liêm ; xin phép xây dựng phường phú diến quận bắc từ liêmDịch vụ xin phép xây dựng phường cổ nhuế 1 quận bắc từ liêmDịch vụ xin phép xây dựng phường xuân tảo quận bắc từ liêmDịch vụ xin phép xây dựng phường xuân đỉnh quận bắc từ liêmDịch vụ xin phép xây dựng phường đông ngạc quận bắc từ liêmDịch vụ xin phép xây dựng phường minh khai quận bắc từ liêmDịch vụ xin phép xây dựng phường tây tựu quận bắc từ liêmDịch vụ xin phép xây dựng phường thụy phương quận bắc từ liêmDịch vụ xin phép xây dựng phường cổ nhuế 2 quận bắc từ liêmDịch vụ xin phép xây dựng phường liên mạc quận bắc từ liêmxin phép xây dựng quận long biên hà nội ; dịch vụ xin phép xây dựng quận cầu giấy hà nội ; Dịch vụ xin giấy phép xây dựng nhà ở quận hai bà trưng hà nộidịch vụ xin cấp phép xây dựng nhà ở quận tây hồ hà nội ; dịch vụ xin giấy phép xây dựng nhà ở quận ba đình hà nội ; dịch vụ sang tên sổ đỏ quận bắc từ liêm ; thiết kế kiến trúc nhà ở gia đìnhthiết kế kết cấu / xin giấy phép xây dựng quận hà đông hà nộidịch vụ xin phép xây dựng nhà ở quận thanh xuân hà nộidịch vụ xin giấy phép xây dựng huyện thanh trì hà nộidịch vụ xin phép xây dựng quận hoàn kiếm hà nộidịch vụ xin phép xây dựng hoài đức hà nộidịch vụ xin phép xây dựng huyện đan phượng hà nộidịch vụ xin phép xây dựng huyện đông anh hà nộiDịch vụ xin phép xây dựng huyện gia lâm hà nội; tư vấn quản lý dự ántư vấn giám sát xây dựng công trình nhà ở riêng lẻTrách nhiệm của tư vấn giám sát trong quản lý chất lượng công trìnhTrách nhiệm của nhà thầu thi công trong quản lý chất lượng công trìnhThẩm tra thiết kê thẩm tra dự toán;

Nhận xét & Thảo luận